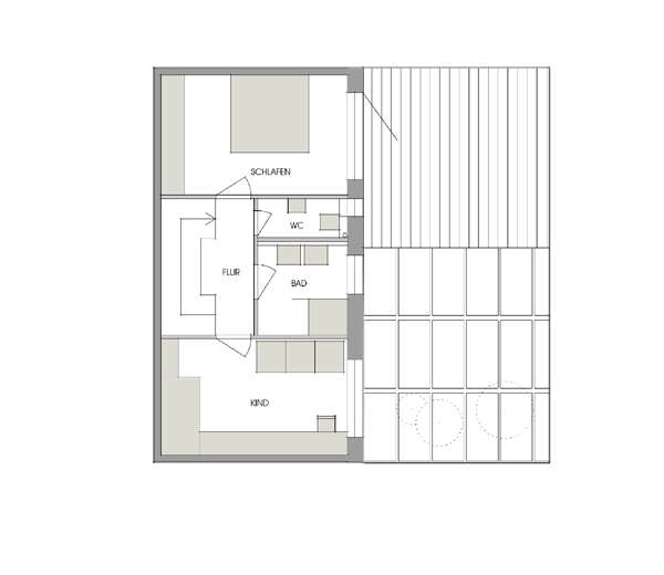
EG1
Kompakt, durchdacht, ausbaubar.
Diese Grundversion ist ideal für einen kostengünstigen Einstieg.
Mit 4 Zimmern, ca. 96 m² Wohnfläche und 30 m² Wohngarten bietet sie alles, was eine Familie zum Start braucht – auf nur 104 m² Grundstücksfläche.
Wichtig: EG1 lässt sich später unkompliziert zu EG2 erweitern – mit Raumreserven im Grundriss und einem modularen Ausbaukonzept, das sich an die Lebensphasen anpasst.





